
La Maison Champagnat
Un centre de vacances pour les groupes
Ce centre de vacances, propriétée du diocèse de Grenoble-Vienne, est un centre agréé Jeunesse et Sport dont la vocation est d'accueillir en priorité les groupes de jeunes, les paroisses, mouvements et associations catholiques du diocèse.
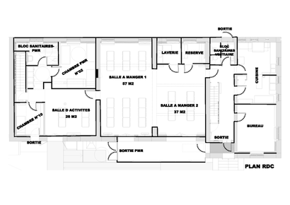
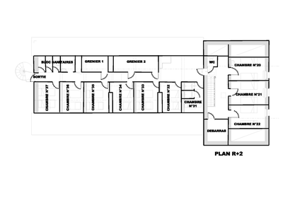
Situé au pied du massif du Vercors, à deux pas du village de Gresse-en-Vercors, le centre bénéficie d'un environnement exceptionnel pour les activités de pleine nature, été comme hiver. Cette maison, en gestion libre, a une capacité maximale de 81 lits (capacité moindre pour les groupes ayant besoin de l'agrément Jeunesse et Sport). Plusieurs tarifs sont proposés en fonction de la provenance des groupes, de leur nombre et de la période de l'année.
Pour tout renseignement, merci d'appeler le 04 38 38 00 38 ou de contacter maisonchampagnat@diocese-grenoble-vienne.fr







